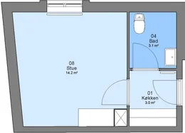
1 værelses lejlighed på 34 m2

N.A.Jørgensens Plads,
6740 Bramming

Månedlig husleje
3.409,-
Oprettet / Opdateret
50 dage siden
Ledig fra
Snarest muligt
Valideret annonce
Ja

1 Translation missing: da.rooms_special <span class="translation_missing" title="translation missing: da.apartment, locale: da">apartment</span> Translation missing: da.in Bramming

Afdelingen består af 26 ungdomsboliger, som er opført i 1986/90. Der er en festsal der udlejes samt et vaskeri i afdelingen.  Beliggenhed Boligerne er beliggende i en etagebebyggelse i Bramming bymidte og egner sig perfekt til unge studerende. Der er 600 meter til togstationen og 200 meter til centrum.  Boligerne Afdelingen består af 1- og 2 værelses lejeboliger til unge studerende. Der er køleskab, komfur og emhætte. Er lejemålet forberedt til opvaskemaskine, vaskemaskine eller tørretumbler må du gerne selv tilslutte disse. Kræver installation af opvaskemaskine, vaskemaskine eller tørretumbler andet end kun tilslutning må dette kun ske efter skriftlig tilladelse fra boligforeningen og for egen regning. Vandforbruget er indeholdt i huslejen. Der er stik til kabel tv og internet installeret. Du kan kontakte en udbyder for valg af tv-kanaler, internethastighed og priser. Til Nørregade 19 findes der en mindre fælles terrasse.' Beboerne Bebyggelsen er er velegnet for unge studerende. På det årlige møde for alle afdelingens beboere beslutter beboerne alle forhold omkring afdelingens drift og husleje mv. Indret dig som du vil Du kan frit indrette dig som du vil og forbedrer du boligen kan du få op til 100.000 kr. i godtgørelse ved fraflytning. Læs mere om dine muligheder under "ændre boligen" på forsiden. Vedligeholdelse

+ Læs mere

Boligens detaljer

Sagsnummer: 7256968
Boligtype
Lejlighed
Antal værelser
1
Størrelse
34 m²
Husleje
3.409,-
Aconto
901,-
Depositum
5.500,-
Forudbetalt leje
Lejeperiode
Ledig fra
Snarest muligt
Husdyr
Ikke tilladt
Elevator
Nej
Altan
Ja
Møbleret
Nej
Delevenlig
Nej
Energimærke
Digital fremvisning
Nej

Boligens placering

Om udlejeren

Tip en ven

Hvis boligen ikke er noget for dig, er den det måske for en du kender?

Del via Facebook
Send på Messenger

Opdater din profil

Din profil er en kort beskrivelse af dig som boligsøgende. Din profil er et vigtigt værktøj for dig som boligsøgende, da udfyldte profiler med billede skiller sig mere ud, når du tager kontakt til en udlejer. Din profil kan kun ses af dig og de udlejere, som du er i kontakt med samt udlejere, der har en aktuel og online bolig, der matcher med dine søgekriterier.