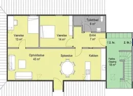
2 værelses lejlighed på 114 m2

Frisenvænget,
5600 Faaborg

Månedlig husleje
9.568,-
Oprettet / Opdateret
41 dage siden
Ledig fra
Snarest muligt
Valideret annonce
Ja

2 værelses lejlighed i Faaborg

Det er tilladt at have 1 hund eller 1 kat.Der må ikke holdes hunde, som er på listen over forbudte hunderacer i Danmark. Det gamle sygehus er 2022 blevet ombygget og istandsat. Boligafdelingen består af 40 lejligheder i størrelser fra ca. 70 – 115 m², der rummer forskelligartede boliger i form af 2 og 3 – værelses lejligheder samt 2 rækkehuse, der i alt har et samlet areal på ca. 4.200 m². De fleste af lejlighederne har egen altan eller adgang til lille have, højt til loftet og de fleste boliger bliver ligeledes med adgang til elevator.Projektet understøtter fællesskabet med sine fællesfaciliteter, der bl.a. består af en fælles tagterrasse med orangeri, samt et fælleshus med køkken. På vores hjemmeside, kan du se mere omkring priser og størrelser for alle de pågældende boliger: Kontakt gerne FAB for nærmere interesse. I denne afdeling gælder vedligeholdelsesreglementet efter A-ordningen.Afdelingen er røgfri, hvilket betyder at alt rygning på matriklen er forbudt.

+ Læs mere
Denne bolig udbydes gennem et boligselskab. Det kan derfor være, at du skal betale et medlemsskab og stå på en venteliste for at komme i betragtning til boligen.

Boligens detaljer

Sagsnummer: 6145369
Boligtype
Lejlighed
Antal værelser
2
Størrelse
114 m²
Husleje
9.568,-
Aconto
1.430,-
Depositum
49.220,-
Forudbetalt leje
Lejeperiode
Ledig fra
Snarest muligt
Husdyr
Ikke tilladt
Elevator
Ja
Altan
Ja
Møbleret
Nej
Delevenlig
Nej
Energimærke
Digital fremvisning
Nej

Boligens placering

Om udlejeren

Tip en ven

Hvis boligen ikke er noget for dig, er den det måske for en du kender?

Del via Facebook
Send på Messenger

Opdater din profil

Din profil er en kort beskrivelse af dig som boligsøgende. Din profil er et vigtigt værktøj for dig som boligsøgende, da udfyldte profiler med billede skiller sig mere ud, når du tager kontakt til en udlejer. Din profil kan kun ses af dig og de udlejere, som du er i kontakt med samt udlejere, der har en aktuel og online bolig, der matcher med dine søgekriterier.