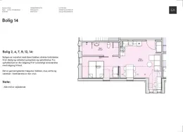
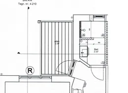
2 værelses lejlighed på 54 m2

GORMSGADE,
8700 Horsens

Månedlig husleje
4.895,-
Oprettet / Opdateret
75 dage siden
Ledig fra
Snarest muligt
Valideret annonce
Ja

2 værelses lejlighed i Horsens

Boligens detaljer

Sagsnummer: 6900660
Boligtype
Lejlighed
Antal værelser
2
Størrelse
54 m²
Husleje
4.895,-
Aconto
700,-
Depositum
14.985,-
Forudbetalt leje
Lejeperiode
Ledig fra
Snarest muligt
Husdyr
Elevator
Nej
Altan
Nej
Møbleret
Nej
Delevenlig
Nej
Energimærke
Digital fremvisning
Nej

Boligens placering

Om udlejeren

Tip en ven

Hvis boligen ikke er noget for dig, er den det måske for en du kender?

Del via Facebook
Send på Messenger

Opdater din profil

Din profil er en kort beskrivelse af dig som boligsøgende. Din profil er et vigtigt værktøj for dig som boligsøgende, da udfyldte profiler med billede skiller sig mere ud, når du tager kontakt til en udlejer. Din profil kan kun ses af dig og de udlejere, som du er i kontakt med samt udlejere, der har en aktuel og online bolig, der matcher med dine søgekriterier.