2 værelses lejlighed på 73 m2

Robert Jacobsens Vej,
2300 København

Månedlig husleje
14.900,-
Oprettet / Opdateret
2 dage siden
Ledig fra
1. maj 2026
Valideret annonce
Ja

2 værelses lejlighed i København S

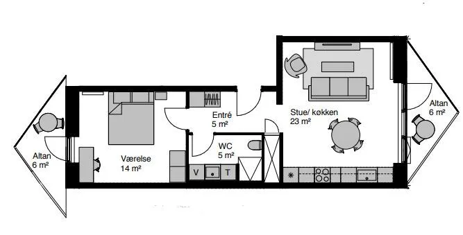
OBS. Billeder er fra prøvebolig Robert Jacobsens Vej 73 i den sydligste spids af Ørestad byderpå 87 lejeboliger. Boligerne har forskellige størrelser fra 64 m² og helt op til 159 m² for den største og er på henholdsvis 2, 3 og 4 værelser, så der er plads til både singler, par, studerende og børnefamilier, der drømmer om at bo tæt på både by og åbne vidder. Hver enkelt bolig er optimeret til dens unikke placering i bygningen, så du får så meget lys som muligt og ikke mindst kan nyde den smukke udsigt over Kalvebod Fælles uendelige natur. De fleste boliger har dermed et fantastisk lysindfald fra begge sider. Indretningen er lys og indbydende med trægulve, hvide vægge og et funktionelt køkken og bad, og hver bolig har adgang til sit eget private uderum – enten i form af en lille have i stueetagen eller altaner. Øverst ligger tre eksklusive penthouselejligheder, der byder på sine egne store tagterrasser. Robert Jacobsens Vej 73 ligger attraktivt placeret i den sydligste del af Ørestad, der i øjeblikket gennemgår en rivende udvikling med nye boliger, indbyggere og spændende ting på tegnebrættet. Samtidig ligger bygningen direkte ud til Kunstpladsen med den markante skulptur 'Den store Udveksler', og du skal blot krydse en gangbro, så rammer du Kalvebod Fælleds skønne natur, som indbyder til både gå-, løbe- og cykelture i de smukke omgivelser. Her finder du også Naturcenter Amager, hvor du kan komme helt tæt på rådyr, gæs, køer og får. Aconto er fastsat ud fra forrige lejers forbrug. Der tages forbehold for fejl og evt. lejereguleringer. Der vil blive indhentet oplysninger hos RKI, og er man registeret hos RKI, vil man ikke kunne leje boligen.

+ Læs mere

Boligens detaljer

Sagsnummer: 7117100
Boligtype
Lejlighed
Antal værelser
2
Størrelse
73 m²
Husleje
14.900,-
Aconto
800,-
Depositum
44.700,-
Forudbetalt leje
14.900,-
Lejeperiode
Ledig fra
1. maj 2026
Husdyr
Tilladt
Elevator
Ja
Altan
Ja
Møbleret
Nej
Delevenlig
Nej
Energimærke
Digital fremvisning
Nej

Boligens placering

Om udlejeren

Tip en ven

Hvis boligen ikke er noget for dig, er den det måske for en du kender?

Del via Facebook
Send på Messenger

Opdater din profil

Din profil er en kort beskrivelse af dig som boligsøgende. Din profil er et vigtigt værktøj for dig som boligsøgende, da udfyldte profiler med billede skiller sig mere ud, når du tager kontakt til en udlejer. Din profil kan kun ses af dig og de udlejere, som du er i kontakt med samt udlejere, der har en aktuel og online bolig, der matcher med dine søgekriterier.