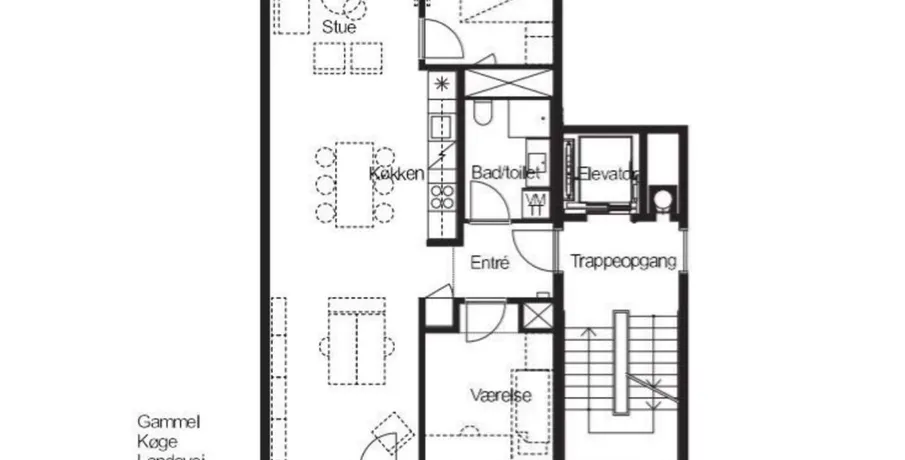
2 værelses lejlighed på 95 m2

Gammel Køge Landevej,
2500 Valby

Månedlig husleje
16.990,-
Oprettet / Opdateret
44 dage siden
Ledig fra
1. mar 2026
Valideret annonce
Ja

2 værelses lejlighed i Valby

Velkommen til Gammel Køge Landevej i Valby Maskinfabrik.. Træd ind i denne charmerende lejlighed, som byder dig velkommen med en rummelig entré. Herfra får du adgang til lejlighedens moderne badeværelse samt to komfortabelt soveværelser.. Midtpunktet i boligen er det imponerende lyse køkkenalrum. Her kan du udfolde din kulinariske passion i et nyere køkken, der stråler af kvalitet og funktionalitet. Fra køkkenalrummet fører en dør dig ud til lejlighedens private altan, hvor du kan nyde solens stråler og frisk luft.. Du kommer til at bo i en attraktiv lejebolig ejendom, hvor du får;. - Beboelsesperiode så længe du vil. - Mulighed for tilladelse til husdyr (efter aftale). - Professionel udlejer. - Fælles grønne områder og fællesarealer. - Hårde hvidevarer inkluderet i køkkenet. - Vær opmærksom på at der er en bindingsperiode på 12 måneder. Din nye adresse er placeret i det eftertragtede Valby Maskinfabrik, i Kranhuset. Området er kendt for sit pulserende nærmiljø med et rigt udvalg af supermarkeder, hyggelige caféer og bekvemme offentlige transportforbindelser. Med Valby Station og den nye metrostation København Syd, er byens hjerte kun en kort rejse væk. Desuden finder du i nærheden et væld af idrætsfaciliteter, skoler og daginstitutioner.. Som en ekstra bonus får du adgang til et depotrum – enten direkte i lejligheden eller i kælderen. I kælder er der desuden mulighed for leje af parkeringsplads.. Interesseret i at opleve denne skønne lejlighed? Vi ser frem til at byde dig velkommen til en fremvisning.

+ Læs mere

Boligens detaljer

Sagsnummer: 9319654
Boligtype
Lejlighed
Antal værelser
2
Størrelse
95 m²
Husleje
16.990,-
Aconto
875,-
Depositum
50.970,-
Forudbetalt leje
16.990,-
Lejeperiode
Ledig fra
1. mar 2026
Husdyr
Elevator
Nej
Altan
Ja
Møbleret
Nej
Delevenlig
Nej
Energimærke
A (2020)
Digital fremvisning
Nej

Boligens placering

Om udlejeren

Tip en ven

Hvis boligen ikke er noget for dig, er den det måske for en du kender?

Del via Facebook
Send på Messenger

Opdater din profil

Din profil er en kort beskrivelse af dig som boligsøgende. Din profil er et vigtigt værktøj for dig som boligsøgende, da udfyldte profiler med billede skiller sig mere ud, når du tager kontakt til en udlejer. Din profil kan kun ses af dig og de udlejere, som du er i kontakt med samt udlejere, der har en aktuel og online bolig, der matcher med dine søgekriterier.