3 værelses lejlighed på 101 m2

Kollegievej,
9000 Aalborg

Månedlig husleje
8.165,-
Oprettet / Opdateret
51 dage siden
Ledig fra
Snarest muligt
Valideret annonce
Ja

3 værelses lejlighed i Aalborg

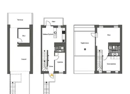
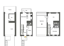
Vær opmærksom på, at denne bolig udlejes gennem et boligselskab, hvorfor der kræves et indskud - og IKKE "depositum" eller "forudbetalt leje". Indskuddet for denne bolig udgør 40.609,00 kr.. Velkommen til denne nyopførte lejebolig beliggende på Kollegievej i hjertet af Aalborg!. Træd ind i denne skønne 3-værelses bolig, hvor lyset strømmer ind gennem de store vinduer og skaber en behagelig atmosfære. Nyd den hyggelige udsigt og det fantastiske lysindfald, der indbyder til ro og velvære.. I det lyse køkken finder du ovn, emhætte køle/fryseskab og kogeplade. Der er desuden klargjort plads til opvaskemaskine, hvilket gør hverdagen mere bekvem.. Det rummelige badeværelse imponerer med praktiske skabe og medfølgende vaskemaskine, hvilket gør det til en funktionel og komfortabel del af boligen.. De store soveværelser er ligeledes indbydende med masser af plads og indbyggede skabe til opbevaring. I det ene soveværelse findes endda et teknikrum, som også kan fungere som et praktisk depotrum.. Stuen er lys og rummelig og byder på masser af plads til både spisebord, sofa, fjernsyn og opbevaring.. Til boligen hører en parkeringsplads, der giver dig bekvem adgang til din bolig.. Plantegningen er vejledende og kan variere fra bolig til bolig.. Udover aconto vand/varme betales der 67 kr. mdn. for vinduesvask.. Om området - Kollegievej (Lektorgaarden). På Kollegievej i Aalborg topper Lektorgaarden, hvor Sundby-Hvorup Boligselskab tilbyder 56 almindelige familieboliger. I alt har Lektorgaarden 132 lejligheder og udgør en firkantet bygningsstruktur med butikker og erhvervslokaler, omgivet af et åbent grønt gårdrum. Øverst finder man en rummelig tagterrasse, der strækker sig over bygningens erhvervssektion.. Disse boliger ligger...

+ Læs mere

Boligens detaljer

Sagsnummer: 7589104
Boligtype
Lejlighed
Antal værelser
3
Størrelse
101 m²
Husleje
8.165,-
Aconto
850,-
Depositum
20.304,-
Forudbetalt leje
20.304,-
Lejeperiode
Ubegrænset
Ledig fra
Snarest muligt
Husdyr
Tilladt
Elevator
Ja
Altan
Nej
Møbleret
Nej
Delevenlig
Ja
Energimærke
A (2015)
Digital fremvisning
Nej

Boligens placering

Om udlejeren

Tip en ven

Hvis boligen ikke er noget for dig, er den det måske for en du kender?

Del via Facebook
Send på Messenger

Opdater din profil

Din profil er en kort beskrivelse af dig som boligsøgende. Din profil er et vigtigt værktøj for dig som boligsøgende, da udfyldte profiler med billede skiller sig mere ud, når du tager kontakt til en udlejer. Din profil kan kun ses af dig og de udlejere, som du er i kontakt med samt udlejere, der har en aktuel og online bolig, der matcher med dine søgekriterier.