3 værelses lejlighed på 175 m2

Landemærket,
1119 København

Månedlig husleje
35.000,-
Oprettet / Opdateret
33 dage siden
Ledig fra
Valideret annonce
Ja

3 værelses lejlighed i København K

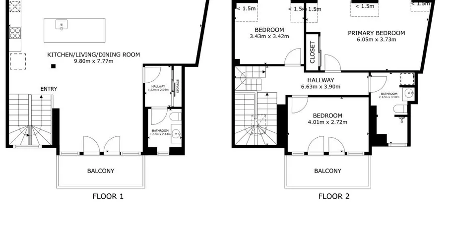
. Enestående lejlighed med tagterrasse og udsigt til Rundetårn i hjertet af Indre København. Velkommen til denne enestående lejlighed på landemærket. Lejligheden, der strækker sig over 175 kvadratmeter. Der er 3 soveværelser, et badeværelse og et gæstetoilet, samt et stort køkkenalrum. Derudover hører der en stor tagterrasse samt 2 altaner til lejligheden.. Når du træder ind i entréen, bliver du ført op ad trappen og videre direkte ind i det rummelige køkken-alrum, som ligger sammen med stuen. Køkkenet er fuldt udstyret med alt det nødvendige, herunder køle-/fryseskab, ovn, opvaskemaskine og vinkøleskab. Desuden findes en bar- og spisestation, der er forlænget med bordpladen og byder på direkte udsigt til Rundetårn. Fra stuen er der direkte adgang til en af lejlighedens altaner.. Når vi fortsætter op ad trappen til næste etage, møder du lejlighedens fordelingsgang, På venstre side ligger de 2 soveværelser, og på højre side ligger endnu et værelse som har direkte adgang til lejlighedens anden altan. Fortsætter man til enden af rummet, finder man lejlighedens badeværelse, der er udstyret med vaskemaskine og tørretumbler.. Når vi fortsætter op ad trappen, kommer vi til lejlighedens tagterrasse, der byder på et lækkert udekøkken og en imponerende udsigt over det indre København og Rundetårn.. Lejligheden har en ideel beliggenhed i hjertet af indre by, med kort afstand til metro, busser og tog. Der er også et væld af hyggelige caféer og butikker i nærheden, og Strøget ligger kun et par hundrede meter fra lejligheden.. Kontakt os i dag for at arrangere en fremvisning eller få yderligere information om boligen..

+ Læs mere

Boligens detaljer

Sagsnummer: 9564764
Boligtype
Lejlighed
Antal værelser
3
Størrelse
175 m²
Husleje
35.000,-
Aconto
1.300,-
Depositum
105.000,-
Forudbetalt leje
Lejeperiode
Over 12 måneder
Ledig fra
Husdyr
Spørg udlejer
Elevator
Nej
Altan
Ja
Møbleret
Nej
Delevenlig
Nej
Energimærke
A (2015)
Digital fremvisning
Nej

Boligens placering

Om udlejeren

Tip en ven

Hvis boligen ikke er noget for dig, er den det måske for en du kender?

Del via Facebook
Send på Messenger

Opdater din profil

Din profil er en kort beskrivelse af dig som boligsøgende. Din profil er et vigtigt værktøj for dig som boligsøgende, da udfyldte profiler med billede skiller sig mere ud, når du tager kontakt til en udlejer. Din profil kan kun ses af dig og de udlejere, som du er i kontakt med samt udlejere, der har en aktuel og online bolig, der matcher med dine søgekriterier.