4 værelses hus / rækkehus på 109 m2

Guldsmedeengen,
3550 Slangerup

Månedlig husleje
15.500,-
Oprettet / Opdateret
3 dage siden
Ledig fra
15. feb 2026
Valideret annonce
Ja

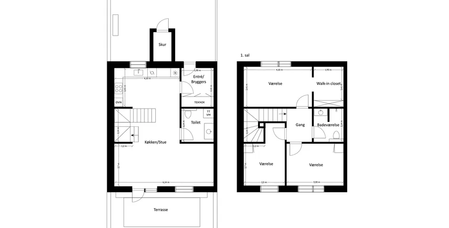
4 værelses hus / rækkehus i Slangerup

. OBS:. Indflytningsdato er ikke fast. Indflytning efter aftale.. Rækkehusene i Slangerup består af moderne og indbydende boliger, der kommer i både et og to plan, hvilket giver dig mulighed for at vælge den boligtype, der passer bedst til dine behov og ønsker. Uanset hvilken boligtype du vælger, vil du få glæde af en gennemtænkt og funktionel planløsning, der skaber de perfekte rammer for familielivet.. Alle rækkehuse byder på et åbent og lyst køkken-alrum med plads til både spisebord og sofaområde, hvor familien kan samles til hverdag og fest. Det rummelige og moderne badeværelse er stilrent og praktisk indrettet. Hvis du vælger et rækkehus i to plan, får du desuden et ekstra toilet i stueetagen, hvilket giver lidt ekstra bekvemmelighed i dagligdagen.. Hvert rækkehus har desuden et tilhørende skur, som giver dig ekstra opbevaringsplads til haveredskaber, cykler eller andet, der ikke skal fylde i boligen. Udenfor kan du nyde din egen lille, hyggelige terrasse samt en mindre have, hvor der er plads til både leg og afslapning.. Hårde hvidevarer. Du får alt i hårde hvidevarer, herunder også opvaskemaskine, vaskemaskine og tørretumbler. Der er gulvvarme i alle boligens rum. Boligen opvarmes med varmepumpe.. Husdyr. Lejere kan ansøge om tilladelse til at holde én indekat eller mindre hund på adressen. Udekatte og store hunde er ikke tilladt. Se vores samlede husdyrsregler. her. .. Parkering. Alle boliger har 2 parkeringspladser i indkørslen.. Fælles arealer. Der etableres et stort fællesområde med grønne arealer, regnvandsbassin og legepladser til ejendommens mindste beboere.. Læs mere om boligen. De viste billeder kan være fra et andet men tilsvarende lejemål i samme ejendom. Mindre afvigelser kan derfor forekomme..

+ Læs mere

Boligens detaljer

Sagsnummer: 7916488
Boligtype
Hus / Rækkehus
Antal værelser
4
Størrelse
109 m²
Husleje
15.500,-
Aconto
0,-
Depositum
46.500,-
Forudbetalt leje
15.500,-
Lejeperiode
Ledig fra
15. feb 2026
Husdyr
Tilladt
Elevator
Nej
Altan
Nej
Møbleret
Nej
Delevenlig
Nej
Energimærke
Digital fremvisning
Nej

Boligens placering

Om udlejeren

Tip en ven

Hvis boligen ikke er noget for dig, er den det måske for en du kender?

Del via Facebook
Send på Messenger

Opdater din profil

Din profil er en kort beskrivelse af dig som boligsøgende. Din profil er et vigtigt værktøj for dig som boligsøgende, da udfyldte profiler med billede skiller sig mere ud, når du tager kontakt til en udlejer. Din profil kan kun ses af dig og de udlejere, som du er i kontakt med samt udlejere, der har en aktuel og online bolig, der matcher med dine søgekriterier.