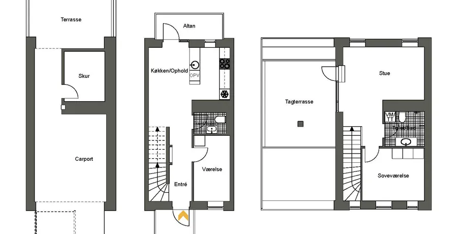
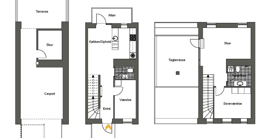
4 værelses lejlighed på 101 m2

Anna Anchers Vej,
9200 Aalborg

Månedlig husleje
9.520,-
Oprettet / Opdateret
21 dage siden
Ledig fra
1. feb 2026
Valideret annonce
Ja

4 værelses lejlighed i Aalborg SV

Sofiendalen. Sofiendalen er det perfekte sted at bo for alle, der drømmer om at bo i pagt med naturen, uden at flytte væk fra byen. Her får du en nyopført bolig med en beliggenhed, der leverer på både natur og nærhed til byens centrum. De nyopførte boliger ligger i bydelen Sofiendal Enge, i den sydvestlige del af Aalborg. Bydelen er lille, fredelig og hyggelig, men samtidig er her alt, hvad man har brug for til daglig og i fritiden. Sofiendal Enge er en bydel, med fokus på grønne områder, som både skaber luft mellem boligerne og giver mulighed for udendørs nabofællesskaber. Samtidig er der en god adgang til natur og flot udsigt over området. Området ligger tæt på sportsfaciliteter med nem adgang til folkeskole og daginstitution, kun få kilometer fra midtbyens pulserende byliv, altså en bydel, der appellerer til mange forskellige mennesker og familier. Alle boliger har private udendørs opholdsarealer i form af egen terrasse, tagterrasse eller altan, og alle kan desuden benytte de indbydende, grønne fællesarealer. Alle boliger er funktionelt indrettet for at udnytte hver kvadratmeter, og der er lagt stor vægt på, at boligerne kræver et absolut minimum vedligeholdelse. OBS: Billederne kan være af en prøvebolig, og ikke den specifikke bolig.

+ Læs mere

Boligens detaljer

Sagsnummer: 5015651
Boligtype
Lejlighed
Antal værelser
4
Størrelse
101 m²
Husleje
9.520,-
Aconto
Depositum
28.560,-
Forudbetalt leje
Lejeperiode
Ledig fra
1. feb 2026
Husdyr
Tilladt
Elevator
Nej
Altan
Ja
Møbleret
Nej
Delevenlig
Nej
Energimærke
Digital fremvisning
Nej

Boligens placering

Om udlejeren

Tip en ven

Hvis boligen ikke er noget for dig, er den det måske for en du kender?

Del via Facebook
Send på Messenger

Opdater din profil

Din profil er en kort beskrivelse af dig som boligsøgende. Din profil er et vigtigt værktøj for dig som boligsøgende, da udfyldte profiler med billede skiller sig mere ud, når du tager kontakt til en udlejer. Din profil kan kun ses af dig og de udlejere, som du er i kontakt med samt udlejere, der har en aktuel og online bolig, der matcher med dine søgekriterier.