4 værelses lejlighed på 136 m2

Poul Anker Bechs Vej,
9200 Aalborg

Månedlig husleje
12.895,-
Oprettet / Opdateret
14 dage siden
Ledig fra
1. jun 2026
Valideret annonce
Ja

4 værelses lejlighed i Aalborg SV

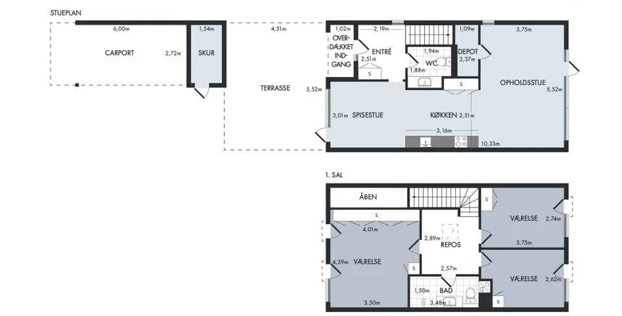
Velkommen til dette rummelige nye 4-værelses rækkehus i to etager, beliggende på Poul Anker Bechs Vej i Hasseris Enge!. Dette 136-kvadratmeter store hjem byder på et elegant og lyst køkken samt en stue med imponerende naturligt lys fra de store vinduespartier, der åbner op til en egen sydvendt terrasse. I stuen er der også adgang til et praktisk opbevaringsrum.. Fra den rummelige entré er der adgang til et praktisk gæstetoilet. Fra entréen fører en trappe til boligens første sal, hvor du finder et moderne badeværelse med vaskesøjle og rummelig bruseniche. På denne etage er der også tre værelser, alle med indbyggede skabe. Fra soveværelset er der yderligere adgang til en praktisk walk-in garderobe.. Rækkehuset byder også på en charmerende udendørs plads foran boligen, perfekt til de lune aftener. Her finder du også dit eget depotrum med strøm. Der medfølger desuden en egen parkeringsplads i den overdækkede carport.. Husdyr kan tillades efter godkendelse fra udlejer.. Billederne er fra naborækkehuset, hvorfor mindre forskelle kan forekomme.. Om området - Poul Anker Bechs Vej 132 - 146. Velkommen til Poul Anker Bechs Vej på det populære og attraktive Hasseris Enge tæt på Aalborg centrum med flot udsigt og i naturskønne omgivelser.. Her befinder du dig tæt på centrum og motorvej, men alligevel i rolige og naturskønne omgivelser med smuk udsigt ud over de mange flotte...

+ Læs mere

Boligens detaljer

Sagsnummer: 8097147
Boligtype
Lejlighed
Antal værelser
4
Størrelse
136 m²
Husleje
12.895,-
Aconto
0,-
Depositum
38.685,-
Forudbetalt leje
12.895,-
Lejeperiode
Ubegrænset
Ledig fra
1. jun 2026
Husdyr
Tilladt
Elevator
Nej
Altan
Ja
Møbleret
Nej
Delevenlig
Nej
Energimærke
A (2015)
Digital fremvisning
Nej

Boligens placering

Om udlejeren

Tip en ven

Hvis boligen ikke er noget for dig, er den det måske for en du kender?

Del via Facebook
Send på Messenger

Opdater din profil

Din profil er en kort beskrivelse af dig som boligsøgende. Din profil er et vigtigt værktøj for dig som boligsøgende, da udfyldte profiler med billede skiller sig mere ud, når du tager kontakt til en udlejer. Din profil kan kun ses af dig og de udlejere, som du er i kontakt med samt udlejere, der har en aktuel og online bolig, der matcher med dine søgekriterier.