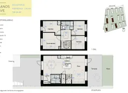
4 værelses lejlighed på 148 m2

Markedspladsen,
3400 Hillerød

Månedlig husleje
16.700,-
Oprettet / Opdateret
26 dage siden
Ledig fra
15. nov 2025
Valideret annonce
Ja

4 værelses lejlighed i Hillerød

I hjertet af Hillerød – helt centralt ud mod Slotssøen, opfører PFA netop nu en imponerende ejendom med indretningsvenlige lejligheder. Disse varierer i størrelse fra 2-5 værelser og spænder fra 77 til 169 kvadratmeter. Beliggenheden er prikken over i’et, hvor du har det hyggelige byliv inden for nem gåafstand, mens du stadig har fantastisk natur lige ved hånden. Den historiske placering giver hverdagen en dybde, og lader du blikket hvile over Slotsøens blanke vand og de grønne haver omkring Frederiksborg Slot, genetablerer du hurtigt jordforbindelsen på selv de travleste dage. Du får naturligvis også kort afstand til både indkøb, dagtilbud, skoler, foreningsliv samt Hillerøds mange restauranter – og så er der heller ikke meget mere end en kilometer til stationen, hvorfra S-toget går direkte til København. Alle lejlighederne har skønt og indbydende lysindfald og med gennemtænkte planløsninger og velvalgte materialer, der understøtter enhver indretningsstil. I alle lejligheder er der sørget for alle hårde hvidevarer i køkkenerne såvel som rummelige badeværelser med separat brus og vaskesøjle. Store vinduespartier lader lyset strømme ind og understreger den gode størrelse på alle værelserne, ligesom der gennemgående er sørget for god opbevaringsplads. Med andre ord får I en bolig, der er lige til at flytte ind i, og hvor hverdagslivet kan leves uden besvær. Der tages forbehold for fejl og evt. lejereguleringer. OBS! Billeder er fra prøvebolig!

+ Læs mere

Boligens detaljer

Sagsnummer: 6645732
Boligtype
Lejlighed
Antal værelser
4
Størrelse
148 m²
Husleje
16.700,-
Aconto
1.550,-
Depositum
50.100,-
Forudbetalt leje
16.700,-
Lejeperiode
Ledig fra
15. nov 2025
Husdyr
Tilladt
Elevator
Ja
Altan
Nej
Møbleret
Nej
Delevenlig
Nej
Energimærke
Digital fremvisning
Nej

Boligens placering

Om udlejeren

Tip en ven

Hvis boligen ikke er noget for dig, er den det måske for en du kender?

Del via Facebook
Send på Messenger

Opdater din profil

Din profil er en kort beskrivelse af dig som boligsøgende. Din profil er et vigtigt værktøj for dig som boligsøgende, da udfyldte profiler med billede skiller sig mere ud, når du tager kontakt til en udlejer. Din profil kan kun ses af dig og de udlejere, som du er i kontakt med samt udlejere, der har en aktuel og online bolig, der matcher med dine søgekriterier.