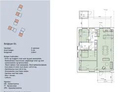
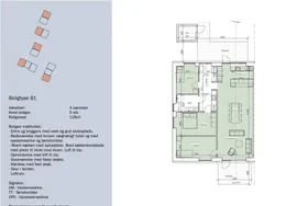
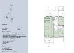
5 værelses hus / rækkehus på 125 m2

Haflingervej,
8960 Randers

Månedlig husleje
11.495,-
Oprettet / Opdateret
7 dage siden
Ledig fra
7. jan 2026
Valideret annonce
Ja

5 værelses hus / rækkehus i Randers SØ

Boligens detaljer

Sagsnummer: 7441043
Boligtype
Hus / Rækkehus
Antal værelser
5
Størrelse
125 m²
Husleje
11.495,-
Aconto
400,-
Depositum
34.485,-
Forudbetalt leje
11.495,-
Lejeperiode
Ledig fra
7. jan 2026
Husdyr
Tilladt
Elevator
Nej
Altan
Nej
Møbleret
Nej
Delevenlig
Nej
Energimærke
Digital fremvisning
Nej

Boligens placering

Om udlejeren

Tip en ven

Hvis boligen ikke er noget for dig, er den det måske for en du kender?

Del via Facebook
Send på Messenger

Opdater din profil

Din profil er en kort beskrivelse af dig som boligsøgende. Din profil er et vigtigt værktøj for dig som boligsøgende, da udfyldte profiler med billede skiller sig mere ud, når du tager kontakt til en udlejer. Din profil kan kun ses af dig og de udlejere, som du er i kontakt med samt udlejere, der har en aktuel og online bolig, der matcher med dine søgekriterier.