6 værelses lejlighed på 172 m2

Storegade,
6800 Varde

Månedlig husleje
8.250,-
Oprettet / Opdateret
50 dage siden
Ledig fra
Valideret annonce
Ja

6 værelses lejlighed i Varde

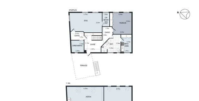
. Stor spændende lejlighed i 2 plan, hvor man får mange kvm får pengene. Der er indgang til lejligheden via hyggeligt gårdmiljø. Lejligheden er beliggende på 1. og 2. sal. Entré og hele 2. salen er netop blevet helt ombygget og totalistandsat med bl.a. nyt køkken og nye gulve.. Parkering: Det kan er mulighed for parkering 25 meter fra boligen på privat P-plads. Entré:. Nyistandsat entréområde, hvor, hvor der er åbnet helt op til 2. sal. En skøn indgang til din bolig.. 1.sal.:. - To store værelser. - Badeværelse med nyt linoleumsgulv. - Stort bryggers med bordplade og ny vaskemaskine og ny tørretumbler. - to mindre rum, som kan være egnet til både opbevaring, viktualierum eller walkin closet. På 2.sal er der højt til loftet. Den lave pris på boligen skyldes, at der på 1.salen er lavt til lavere til loftet i nogle af rummene. Så her får man mange kvm får pengene.. 2.sal.:. - utroligt dejlig lys med mange ovenlysvinduer (Velux). - er helt ny fra Invita og med alt i hårde hvidevarer inkl. opvaskemaskine, køle-/fryseskab, stilfuld emhætte, induktion, ovn, emhætte. Nye plankegulve med mat lak. - nye lakerede plankegulve. På 2.sal er der højt til loftet.. Boligen er beliggende i hjertet af Varde og tæt ved indkøb, Torvet, butikker og skønne Varde Garten. Boligen har egen privat stor tagterrasse.. Ejendommen:. -Fælles gårdmiljø. -Ny teglstensbelægning med brændte tegl fra Vangsø, som er af den samme høje kvalitet som belægningen i VARDE GARTEN. -Nyopført aflåst cykelskur. -Nye døre. Kontakt os for en fremvisning. Lejevilkår:. - 3 måneders depositum. - Ubegrænset lejeperiode. - Lejemålet er uopsigeligt de første 12 måneder. Herefter kan lejemålet opsiges med 3 måneders varsel. - Husdyrhold er ikke tilladt, men der kan i nogle tilfælde gøres undtagelser. - Lejer tilmelder sig som aftager af EL på adressen. - Varme og vand betales á conto af lejer. Energimærke B.

+ Læs mere

Boligens detaljer

Sagsnummer: 6843176
Boligtype
Lejlighed
Antal værelser
6
Størrelse
172 m²
Husleje
8.250,-
Aconto
1.050,-
Depositum
24.750,-
Forudbetalt leje
Lejeperiode
Ubegrænset
Ledig fra
Husdyr
Ikke tilladt
Elevator
Nej
Altan
Nej
Møbleret
Nej
Delevenlig
Nej
Energimærke
Digital fremvisning
Nej

Boligens placering

Om udlejeren

Tip en ven

Hvis boligen ikke er noget for dig, er den det måske for en du kender?

Del via Facebook
Send på Messenger

Opdater din profil

Din profil er en kort beskrivelse af dig som boligsøgende. Din profil er et vigtigt værktøj for dig som boligsøgende, da udfyldte profiler med billede skiller sig mere ud, når du tager kontakt til en udlejer. Din profil kan kun ses af dig og de udlejere, som du er i kontakt med samt udlejere, der har en aktuel og online bolig, der matcher med dine søgekriterier.