3 værelser på 94 m2

Langkær,
8410 Rønde

Månedlig husleje
11.050,-
Oprettet / Opdateret
3 dage siden
Ledig fra
31. maj 2026
Valideret annonce
Ja

94 m2 værelse i Rønde

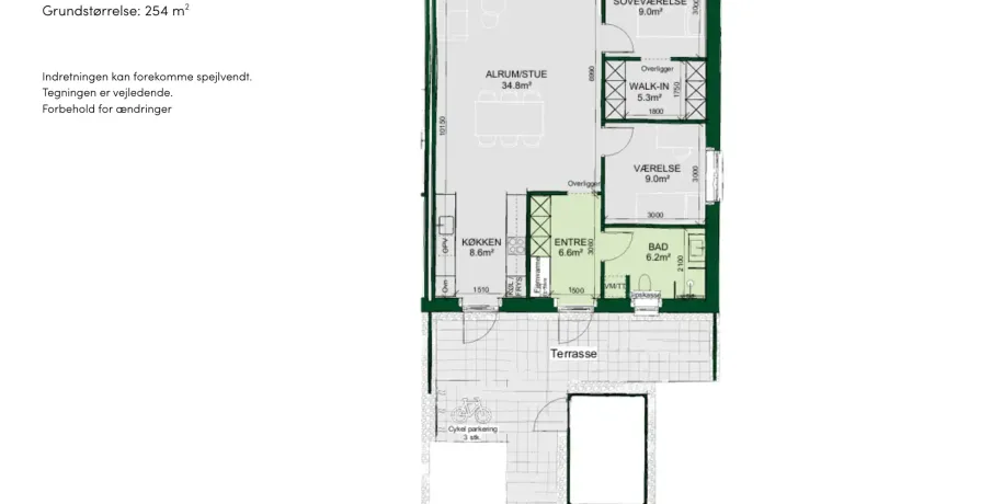
Moderne familiebolig med plads til både fællesskab og privatlivVelkommen til en funktionel og indbydende bolig, hvor hver kvadratmeter er udnyttet optimalt. Hjemmet rummer i alt 3 værelser, inklusiv et stort køkken/alrum og stue, der danner hjertet i boligen. Her er der rigelig plads til både hverdag og hyggelige middage med familie og venner.Gennemtænkt planløsningBoligen byder på et lyst og åbent køkkenalrum og stue, hvor loft til kip og store vinduespartier inviterer lyset indenfor og skaber en naturlig forbindelse til terrassen og haven. Derudover finder du:- Et rummeligt soveværelse med Walk-In-Closet- Ét godt værelse oplagt til børneværelse, hjemmekontor eller gæster- Et lyst badeværelse med vaskemaskine og tørretumbler- Praktisk entre med masser af opbevaringUdeliv og praktiske løsningerFra stuen er der direkte udgang til en skøn terrasse og have, perfekt til sommerens måltider og afslapning i solen. Til boligen hører desuden fælles p-plads med ladeløsning, et redskabsrum på 8 m² samt cykelparkering – så der er tænkt på hverdagens behov.

+ Læs mere

Boligens detaljer

Sagsnummer: 9770411
Boligtype
Værelse
Antal værelser
3
Størrelse
94 m²
Husleje
11.050,-
Aconto
0,-
Depositum
33.150,-
Forudbetalt leje
11.050,-
Lejeperiode
Ledig fra
31. maj 2026
Husdyr
Tilladt
Elevator
Nej
Altan
Ja
Møbleret
Nej
Delevenlig
Nej
Energimærke
A (2015)
Digital fremvisning
Nej

Boligens placering

Om udlejeren

Tip en ven

Hvis boligen ikke er noget for dig, er den det måske for en du kender?

Del via Facebook
Send på Messenger

Opdater din profil

Din profil er en kort beskrivelse af dig som boligsøgende. Din profil er et vigtigt værktøj for dig som boligsøgende, da udfyldte profiler med billede skiller sig mere ud, når du tager kontakt til en udlejer. Din profil kan kun ses af dig og de udlejere, som du er i kontakt med samt udlejere, der har en aktuel og online bolig, der matcher med dine søgekriterier.