1 værelses lejlighed på 49 m2

Siljangade,
2300 København

Månedlig husleje
11.600,-
Oprettet / Opdateret
I dag
Ledig fra
Valideret annonce
Ja

Rummeligt studio et stenkast fra Amagerbro

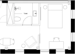
Klassisk studiolejlighed med funktionel planløsning og kompakt indretning. Opholdsrummet rummer både seng, spiseplads og sofa. Store vinduer giver et flot lysindfald. Køkkenet ligger i forlængelse af entréen og indeholder alt i hårde hvidevarer. Badeværelse med separat brus. Ejendommen - Mere end bare din egen bolig: Siljangade rummer 138 lyse studios med eget køkken og bad – og adgang til alt det ekstra, der gør en forskel i hverdagen. Her er fælles tagterrasse med udsigt over byen, loungeområder, mødelokaler, co-working, fitnessrum og en grøn gård. Du kan også benytte vaskeri og parkering, og nyde måltider eller en kaffe i husets eget spisested, The Kitchen. Alt er samlet under ét tag – lige til at tage i brug. Området – et levende hjørne af København: Siljangade ligger lige der, hvor byen åbner sig. Med Kløvermarkens grønne flader foran og Amagerbros summen bag dig, har du både ro og puls inden for rækkevidde. Her er kort afstand til metro, Christianshavn og Amager Strand – og indkøb finder du lige rundt om hjørnet. Det gør det let at få hverdagen til at glide, uanset om du bor, arbejder eller gør begge dele her. Bemærk venligst, at billederne kan være fra en anden bolig, hvorfor indretning, beliggenhed og udsigt kan variere. Materialevalg og kvalitet er den samme for alle boliger i ejendommen. Se plantegningen for indretningen af denne bolig

+ Læs mere

Boligens detaljer

Sagsnummer: 7070201
Boligtype
Lejlighed
Antal værelser
1
Størrelse
49 m²
Husleje
11.600,-
Aconto
0,-
Depositum
0,-
Forudbetalt leje
0,-
Lejeperiode
Ledig fra
Husdyr
Spørg udlejer
Elevator
Ja
Altan
Nej
Møbleret
Nej
Delevenlig
Ja
Energimærke
Digital fremvisning
Nej

Boligens placering

Om udlejeren

Tip en ven

Hvis boligen ikke er noget for dig, er den det måske for en du kender?

Del via Facebook
Send på Messenger

Opdater din profil

Din profil er en kort beskrivelse af dig som boligsøgende. Din profil er et vigtigt værktøj for dig som boligsøgende, da udfyldte profiler med billede skiller sig mere ud, når du tager kontakt til en udlejer. Din profil kan kun ses af dig og de udlejere, som du er i kontakt med samt udlejere, der har en aktuel og online bolig, der matcher med dine søgekriterier.