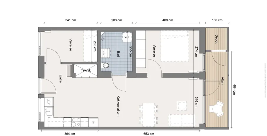
3 værelses lejlighed på 79 m2

Bøgeskovgårdsvej,
3200 Helsinge

Månedlig husleje
13.095,-
Oprettet / Opdateret
I går
Ledig fra
Valideret annonce
Ja

Velbeliggende 3 værelses seniorbolig med egen altan mod øst. Stort køkken/alrum og depotrum på altanen!

Om boligen: Denne treværelses bolig indeholder et rummeligt vinkelkøkken med skøn udsigt til atriumhaven og fællesskabet. Fra stuen er der direkte udgang til en stor, privat altan, hvor du også finder et privat depotrum. Køkkenet er et danskproduceret snedkerkøkken med et eksklusivt og personligt udtryk. Udført i lakeret birkekrydsfiner spiller det smukt sammen med boligernes gulve, vinduesrammer og træet i atriet. I entréen er en slagbænk i samme høje kvalitet. I soveværelset medfølger fire hvide skabe med bøjlestænger og hylder. Denne bolig har desuden endnu et værelse, der kan bruges til kontor, hobbyrum og gæsteværelse. Mod atriumhaven har du et forareal, hvor du kan nyde morgenkaffen tæt på fællesskabet og de grønne planter. Her er du velkommen til at skabe personlig hygge med et par krukker og en smal bænk eller et lille cafésæt af metal. Roberthaven er opført miljøbevidst med både facader og bærende konstruktioner i træ og med lavest mulige belastning af klimaet. Opvarmning sker med luft-til-luft varmepumpe, som er en af de meste effektive og bæredygtige løsninger. Varmepumpen kører på el, og aconto opkrævning af el rummer derfor både forbrug til opvarmning, madlavning, belysning og alle de andre ting, man laver i hjemmet. Boligen indeholder: -Entré med snedkerbygget slagbænk-Badeværelse med plads til vaskesøjle-Soveværelse med fire indbyggede skabe-Ekstra værelse – evt. kontor/gæsteværelse-Danskproduceret snedkerkøkken med integreret opvaskemaskine-Stue med udgang til privat altan-Eget depotrum på altanOm Roberthaven: Roberthaven lægger stor vægt på fællesskabet og tilbyder blandt andet fællesspisning samt ugentlige bræt- og kortspilsdage. Her får man mulighed for at lære sine naboer bedre at kende og kan sammen benytte fællesfaciliteter som værksted, petanquebane og fællesrum, som også kan bookes til private arrangementer. Som noget ganske særligt, byder Roberthaven på en overdækket Atriumhave, som med et hav af skønne fællesfaciliteter binder boligerne sammen, og gør det muligt at trives og nyde livet i fællesskab med ligesindede. Kort om området: Roberthaven er placeret i Troldebakkerne, Helsinges nye, unikke bydel. Bebyggelsen ligger i gåafstand til indkøb, offentlig transport, sportsfaciliteter, og bydelen er kun 5 minutters cykeltur fra Helsinges centrum. Der er desuden kort vej til både skov og strand. Helsinge ligger kun 45 km fra Rådhuspladsen, hvilket gør området særligt attraktivt for pendling til København. Fra Troldebakkerne er der direkte togforbindelse til både Hillerød og Tisvildeleje.

+ Læs mere

Boligens detaljer

Sagsnummer: 7818148
Boligtype
Lejlighed
Antal værelser
3
Størrelse
79 m²
Husleje
13.095,-
Aconto
0,-
Depositum
0,-
Forudbetalt leje
0,-
Lejeperiode
Ledig fra
Husdyr
Spørg udlejer
Elevator
Ja
Altan
Ja
Møbleret
Nej
Delevenlig
Ja
Energimærke
Digital fremvisning
Nej

Boligens placering

Om udlejeren

Tip en ven

Hvis boligen ikke er noget for dig, er den det måske for en du kender?

Del via Facebook
Send på Messenger

Opdater din profil

Din profil er en kort beskrivelse af dig som boligsøgende. Din profil er et vigtigt værktøj for dig som boligsøgende, da udfyldte profiler med billede skiller sig mere ud, når du tager kontakt til en udlejer. Din profil kan kun ses af dig og de udlejere, som du er i kontakt med samt udlejere, der har en aktuel og online bolig, der matcher med dine søgekriterier.