2 værelses lejlighed på 53 m2

Hvidovrevej,
2650 Hvidovre

Månedlig husleje
10.650,-
Oprettet / Opdateret
I går
Ledig fra
Valideret annonce
Ja

Lys og rummelig 2-vær. lejl. med gode fælles faciliter, bl.a. fælles tagterrasse

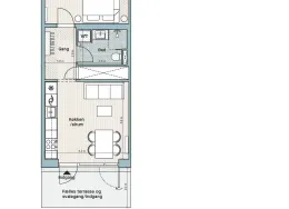
Boligen:Stor 2 værelses lejlighed, der indrettet med et godt alrum med flotte Pergo laminatgulve og store vinduespartier, der byder på et godt lysindfald til lejligheden og udsigt over området. I soveværelset er der et indbygget skab, og der vil derudover være plads til både seng og evt. ekstra opbevaring/skabe.Lejligheden er indrettet med et hvidt køkken fra Svane, med alt i hårde hvidevarer fra Electrolux. Badeværelset er rummeligt, holdt i grå klinker på gulvet, og hvide klinker i brusenichen, og dertil vil der være installeret en kombi vaske-/tørremaskine. Der er desuden gulvvarme i hele lejligheden, og til lejligheden vil man få tildelt en depotbox på 1.sal til opbevaring.Ejendommen:Ejendommen byder på flere gode fællesfaciliteter. Bl.a. kan man benytte den fælles tagterrasse på 2.sal, fælleslokale med køkkenfaciliter på 1.sal eller aktivitetsrummet, der ligeledes ligger på 1.sal.Området:Med en bopæl i Frihedens Tower, får man en nem og praktisk hverdag, med alt inden for nær rækkevidde. Der vil endvidere ligge en Føtex i ejendommens stueetage, og dertil er der et bredt udvalg af butikker, fitness, shopping og spisesteder, der alle ligger inden for får minutter, samt naturen der fx kan nydes ved den nærliggende strand og havn.

+ Læs mere

Boligens detaljer

Sagsnummer: 7410372
Boligtype
Lejlighed
Antal værelser
2
Størrelse
53 m²
Husleje
10.650,-
Aconto
0,-
Depositum
0,-
Forudbetalt leje
0,-
Lejeperiode
Ledig fra
Husdyr
Spørg udlejer
Elevator
Ja
Altan
Nej
Møbleret
Nej
Delevenlig
Ja
Energimærke
Digital fremvisning
Nej

Boligens placering

Om udlejeren

Tip en ven

Hvis boligen ikke er noget for dig, er den det måske for en du kender?

Del via Facebook
Send på Messenger

Opdater din profil

Din profil er en kort beskrivelse af dig som boligsøgende. Din profil er et vigtigt værktøj for dig som boligsøgende, da udfyldte profiler med billede skiller sig mere ud, når du tager kontakt til en udlejer. Din profil kan kun ses af dig og de udlejere, som du er i kontakt med samt udlejere, der har en aktuel og online bolig, der matcher med dine søgekriterier.